Project Description
KULTURBAHNHOF IDSTEIN
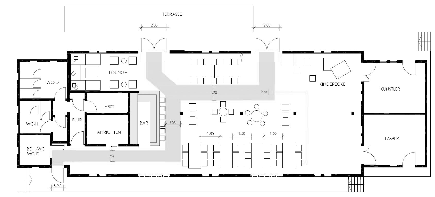
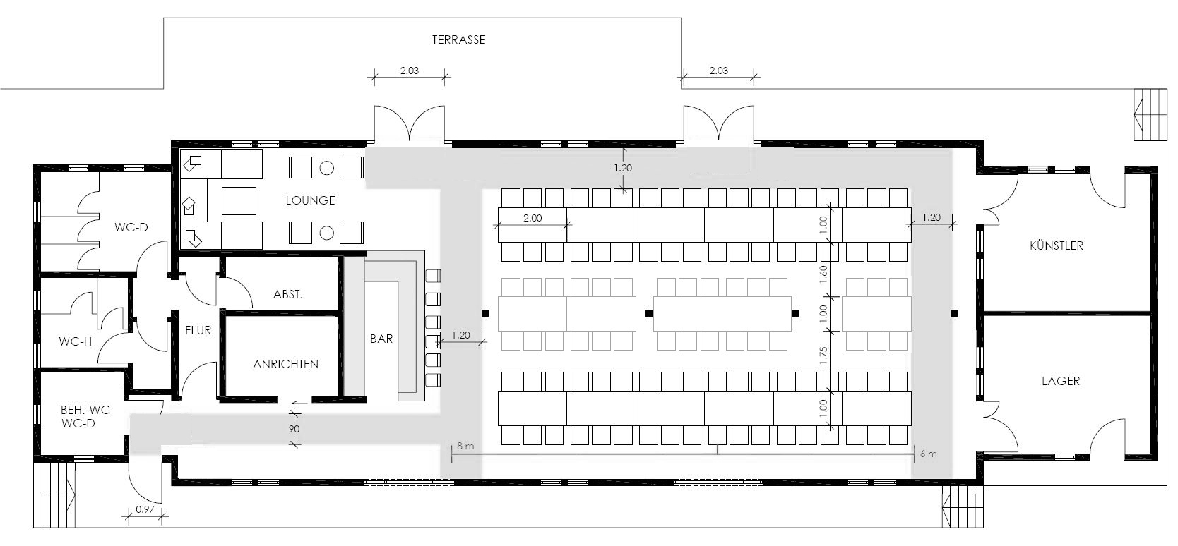
Im Jahr 1900 entstand die Güterbahnhofshalle in Idstein. Fast 20 Jahre nach ihrer Stilllegung wurde sie im Herbst 2014 durch eine außergewöhnliche Initiative der Idsteiner Bürger, der Stadtverwaltung, der Hochschule Fresenius und dem Stadtumbaumanagement in einen Kulturtreff umgewandelt. Der einstige Umschlagplatz für Waren und Güter am Idsteiner Güterbahnhof hat somit eine neue Identität als bedeutender Ort in Idstein erhalten.
Das Haus der Bürger, auch bekannt als Kulturbahnhof, wird als Gemeinbedarfseinrichtung von der Stadt Idstein und der Hochschule Fresenius unterstützt und von engagierten Bürgern betreut. Es steht allen offen und bietet der Bevölkerung und den Studenten des Hochschulstandortes eine attraktive Möglichkeit zum Austausch und zur Zusammenkunft außerhalb des Campus.
Dank der umfassenden Sanierung bleibt das geschichtsträchtige Gebäude erhalten und erinnert somit auch weiterhin an seine Vergangenheit als Güterbahnhof.
LEISTUNG
Bauherrenvertretung und Entwicklung eines Nutzungs- und Betriebskonzepts
LEISTUNGSZEITRAUM
2014
AUFTRAGGEBER
Stadt Idstein











